Volver
SOLICITAR VISITA
REFERENCIA: 1725/990 - Piso en venta en Rejas, San Blas (Madrid) / Madrid (Madrid).
- Precio de Venta: 750.000 €
NO COBRAMOS HONORARIOS AL COMPRADOR. TRATO DIRECTO CON LA PROPIEDAD, TOTAL TRANSPARENCIA. IMPUESTOS Y GASTOS NO INCLUIDOS.
ALFA ACACIAS PRESENTA EN EXCLUSIVA, Piso en Venta en Urbanización Privilegiada - Ideal para Tu Familia.
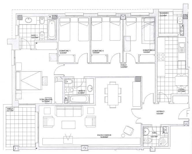
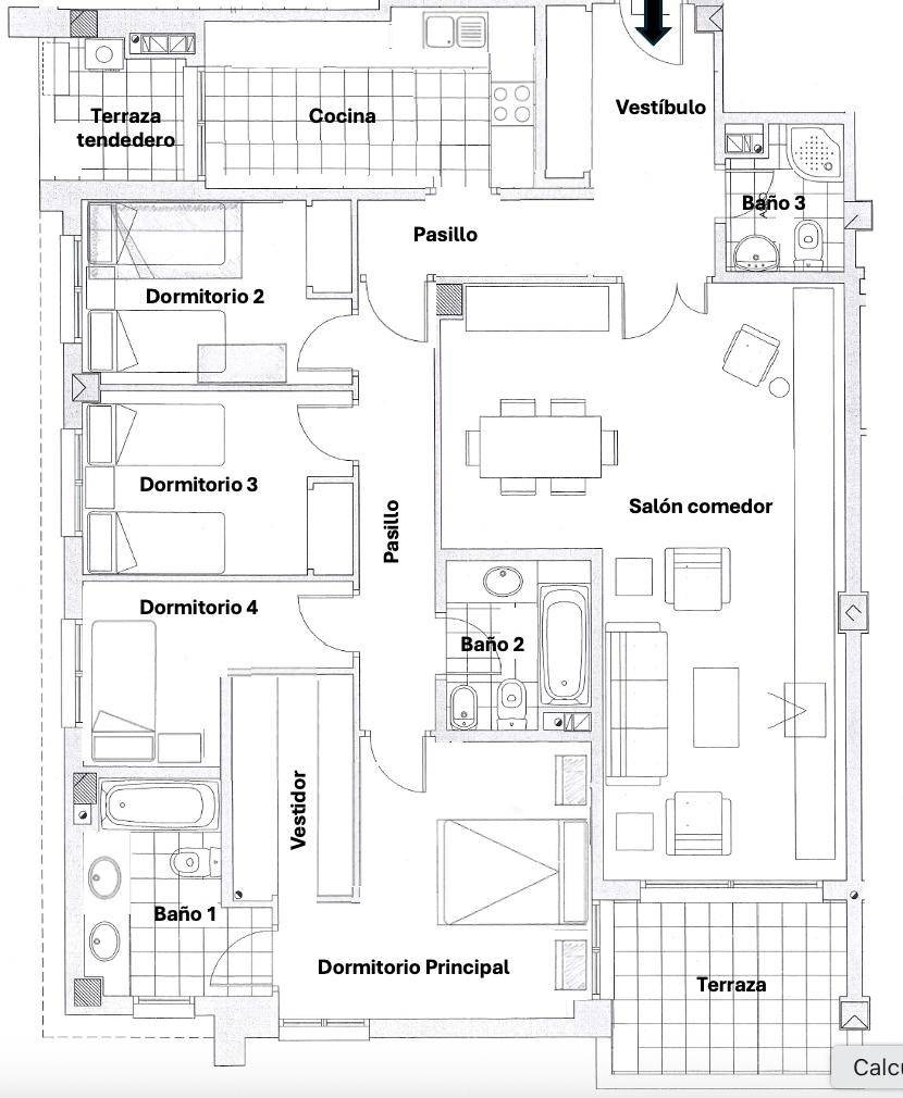
Descubre este impresionante piso en venta, ubicado en una urbanización de ensueño que ofrece todo lo que necesitas para vivir cómodamente. Con una superficie total construida de 156 m² y 141 m² útiles, este hogar cuenta con 4 amplios dormitorios, perfectos para disfrutar de la tranquilidad y el descanso. Los 3 baños completos, incluyendo el del dormitorio principal totalmente reformado con materiales de alta calidad de Porcelanosa, añaden un toque de lujo a tu día a día.
El salón independiente de 32 m² se convierte en el corazón del hogar, ideal para reuniones familiares o momentos de relax. Desde aquí, accedes a una terraza con vistas despejadas, donde podrás disfrutar de total privacidad y momentos al aire libre. La cocina, completamente reformada y amueblada (sin electrodomésticos), es un espacio funcional y moderno que hará las delicias de los amantes de la gastronomía.
La urbanización ofrece una variedad de comodidades, incluyendo piscina, zonas comunes y servicio de portería. Además, la ubicación es inmejorable: cercana a colegios, guarderías y un centro comercial, con fácil acceso al transporte público y al aeropuerto. Este piso también incluye una plaza de garaje con cargador para coche eléctrico y un trastero, brindando aún más funcionalidad a tu nuevo hogar.
Con su excelente aislamiento térmico y acústico gracias a las dobles ventanas en todas las habitaciones, y la iluminación LED que crea un ambiente acogedor, este piso es una opción perfecta para quienes buscan confort y calidad de vida.
¡No pierdas la oportunidad de visitarlo!
ALFA ACACIAS PRESENTA EN EXCLUSIVA, Piso en Venta en Urbanización Privilegiada - Ideal para Tu Familia.
Descubre este impresionante piso en venta, ubicado en una urbanización de ensueño que ofrece todo lo que necesitas para vivir cómodamente. Con una superficie total construida de 156 m² y 141 m² útiles, este hogar cuenta con 4 amplios dormitorios, perfectos para disfrutar de la tranquilidad y el descanso. Los 3 baños completos, incluyendo el del dormitorio principal totalmente reformado con materiales de alta calidad de Porcelanosa, añaden un toque de lujo a tu día a día.
El salón independiente de 32 m² se convierte en el corazón del hogar, ideal para reuniones familiares o momentos de relax. Desde aquí, accedes a una terraza con vistas despejadas, donde podrás disfrutar de total privacidad y momentos al aire libre. La cocina, completamente reformada y amueblada (sin electrodomésticos), es un espacio funcional y moderno que hará las delicias de los amantes de la gastronomía.
La urbanización ofrece una variedad de comodidades, incluyendo piscina, zonas comunes y servicio de portería. Además, la ubicación es inmejorable: cercana a colegios, guarderías y un centro comercial, con fácil acceso al transporte público y al aeropuerto. Este piso también incluye una plaza de garaje con cargador para coche eléctrico y un trastero, brindando aún más funcionalidad a tu nuevo hogar.
Con su excelente aislamiento térmico y acústico gracias a las dobles ventanas en todas las habitaciones, y la iluminación LED que crea un ambiente acogedor, este piso es una opción perfecta para quienes buscan confort y calidad de vida.
¡No pierdas la oportunidad de visitarlo!
- Calificación consumo de energía: D.
- Consumo de energía (kwh/m2 año): 94.
- Calificación de emisiones CO2: C.
- Emisiones CO2 (kg CO/m2 año): 18.
- Piso: planta 3.
- Año de construcción: 2.005.
- Área total construida: 156 m2.
- Área total útil: 141 m2.
- Área salón: 32 m2.
- Área terraza: 7 m2.
- Habitaciones: 4.
- Baños: 3.
- Armarios empotrados: 5.
- Plazas de parking: 1.
- Ascensores: 2.
- Estado de conservación: buen estado.
- Tipo calefacción: individual.
- Detalles calefacción: Gas Natural.
- Agua caliente: individual.
- Aire acondicionado: frío/calor.
- Interior/exterior: exterior.
- Amueblado: cocina amueblada.
- Tendedero: descubierto.
- Comunidad: 279 €.
- Equipamiento: piscina, conserje, trastero, puerta de seguridad.
- Puertas: madera lacada.
- Ventanas: aluminio, doble cristal, doble ventana.
- Suelos: tarima.
Datos de contacto
- Oficina: 1725 - Alfa Acacias
- Teléfonos: 910 299 805 / 695 352 945
- Whatsapp: 695 352 945
- Email: [email protected]
- Web: alfaacacias.com
Localización
Hoja informativa. No incluidos gastos de Escrituración, Registro e Impuestos.
La oficina 1725, C/ Toledo 140 - Local 2 (Madrid - Madrid) con nombre fiscal Monreb Inmuebles, SL y CIF: B85523454
es responsable de los datos e información publicitados de este inmueble.
La oficina 1725, C/ Toledo 140 - Local 2 (Madrid - Madrid) con nombre fiscal Monreb Inmuebles, SL y CIF: B85523454
es responsable de los datos e información publicitados de este inmueble.

































